LOT
15
Occupying a generous plot of almost half an acre, this large, detached house off...
*Guide Price | £500,000+ (plus fees)
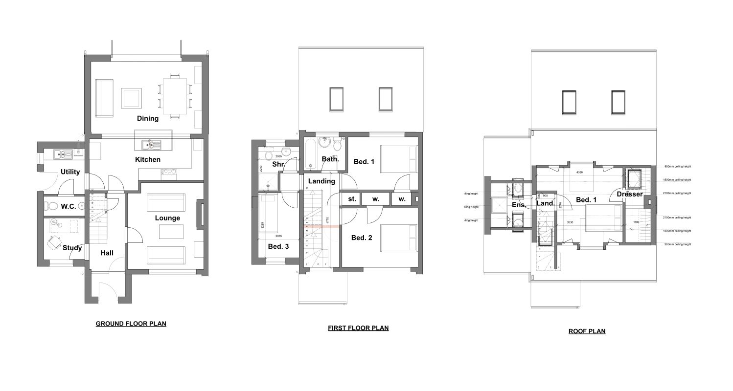
A semi-detached house that has been enlarged to provide 1,650 square feet of accommodation with works complete, that will include a splendid large kitchen dining room, four bedrooms and three bathrooms, which requires work to finish the project.
Originally a three-bedroom house, works have been undertaken to enlarge the building to three sides with an entrance porch at the front, a side extension to provide rooms on three levels, and a single storey addition at the rear. With the shell complete, significant works remain outstanding, including the creation of the second floor master bedroom within the original loft void, internal and external wall finishes, fixtures, fittings, electrical and plumbing works.
The house sits within a generous plot alongside the Witney Road, facing into a short no-through road that serves just 4 other houses, There is sufficient room at the front to allow for off road parking for several vehicles, then at the rear is a long garden that is well screened with a hedge along the side boundary providing a good degree of privacy. This side boundary also benefits from a block and stone wall along the entire length.
Freehold
Ground Floor: Entrance hallway, living room, kitchen/breakfast/family room.
First Floor: Landing, three bedrooms and family bathroom.
Proposed Ground Floor: Entrance hallway, living room, kitchen, study, W/C, utility room and dining room.
Proposed First Floor: Landing, three bedrooms, shower room and bathroom.
Proposed Second Floor: Bedroom with en-suite shower room and dressing room.
Planning Reference: 24/02339/HHD
Planning: Erection of single-storey rear, and two-storey side extensions along with construction of a front porch, conversion of loft space with front and rear dormer windows, and formation of a raised parking area within the front garden.
Decision Date: 17th Dec 2024
Decision: Approved
D
D
VAT is not applicable
West Oxfordshire District Council
01993 861 000
Interested parties are requested to make their own enquiries to the relevant authorities as to the availability of services.
There is no Buyer's Premium payable on this lot.
Please see the legal pack for any disbursements listed that may become payable by the purchaser on completion.
Purchasers will be required to pay an administration fee of £1,500 incl. VAT
12:00pm
Delta Marriott Hotel Timbold Drive, Milton Keynes, Buckinghamshire MK7 6HL
These are open house viewings, you do not need to make an appointment you can simply attend between the published times.
This site is protected by reCAPTCHA and the Google Privacy Policy and Terms of Service apply.
Price Information
*Guides are provided as an indication of each seller’s minimum expectation. They are not necessarily figures which a property will sell for and may change at any time prior to the auction. Each property will be offered subject to a Reserve (a figure below which the Auctioneer cannot sell the property during the auction) which we expect will be set within the Guide Range or no more than 10% above a single figure Guide.
Additional Fees Information
Please be aware there may be additional fees payable on top of the final sale price. These include and are not limited to administration charges and buyer’s premium fees payable on exchange, and disbursements payable on completion. Please ensure you check the property information page for a list of any relevant additional fees as well as reading the legal pack for any disbursements.








